Laurel Renovation and Expansion
Laurel


reflections
The Laurel project is a comprehensive renovation and expansion of a residential property, guided by a desire to enhance both the everyday rhythms of the home and its relationship to the landscape beyond.
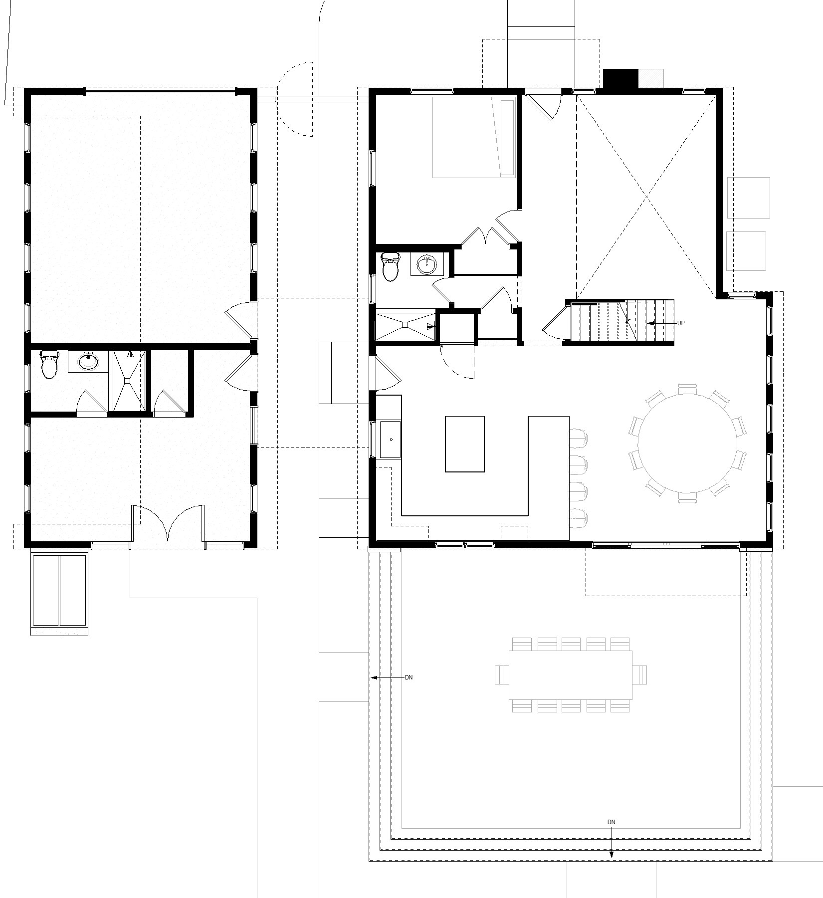
The kitchen and dining room were expanded and refocused to open onto a redesigned wrap-around deck to draw occupants outdoors. A dormer addition to the second level lifts the living room ceiling and pulls light down through the stair hall. The Garage/Art-Studio mirrors the primary residence in massing, with its own dormer flooding the studio with natural light and glass doors opening to the rear yard facing the main house. The pool house completes the rear composition: a generous open entertaining space centered on the pool, with a shed roof and modest overhang. Standing seam roofing unifies all three structures across the site.
At ZTC Architecture, we believe that a home and its outbuildings should speak the same architectural language. The Laurel project demonstrates our ability to choreograph a multi-structure site into a cohesive, natural light-filled environment designed for both daily living and effortless entertaining.

















-V1_cor_3_ps-26430756.jpg)



